Zu Verkaufen 990.000 € - Wohn- und Geschäftshaus
Gebäude:
Die hier angebotene Liegenschaft wurde um 1918 errichtet und über die Jahre fortlaufend modernisiert und präsentiert sich so in einem guten Pflege- und Erhaltungszustand.
Im Erdgeschoss liegen zwei Ladenlokale. Das linke Geschäft verfügt über einen straßenseitigen Verkaufsraum, gartenseitig liegen ein Büroraum und eine Küche. Das Ladenlokal ist langfristig als Vereinsbüro vermietet. Das rechts des Hauseingangs gelegene Ladenlokal besteht aus einem Raum und ist an einen Kunstverein vermietet. Die beiden Gewerbeflächen teilen sich ein WC im Untergeschoss des Hauses. Zudem verfügt das linke Ladenlokal über einen großzügigen Lagerraum im Untergeschoss. Im gartenseitigen Anbau des Erdgeschosses liegt eine 2-Zimmerwohnung mit Küche und Bad. Der Garten steht der Hausgemeinschaft zur gemeinschaftlichen Nutzung zur Verfügung.
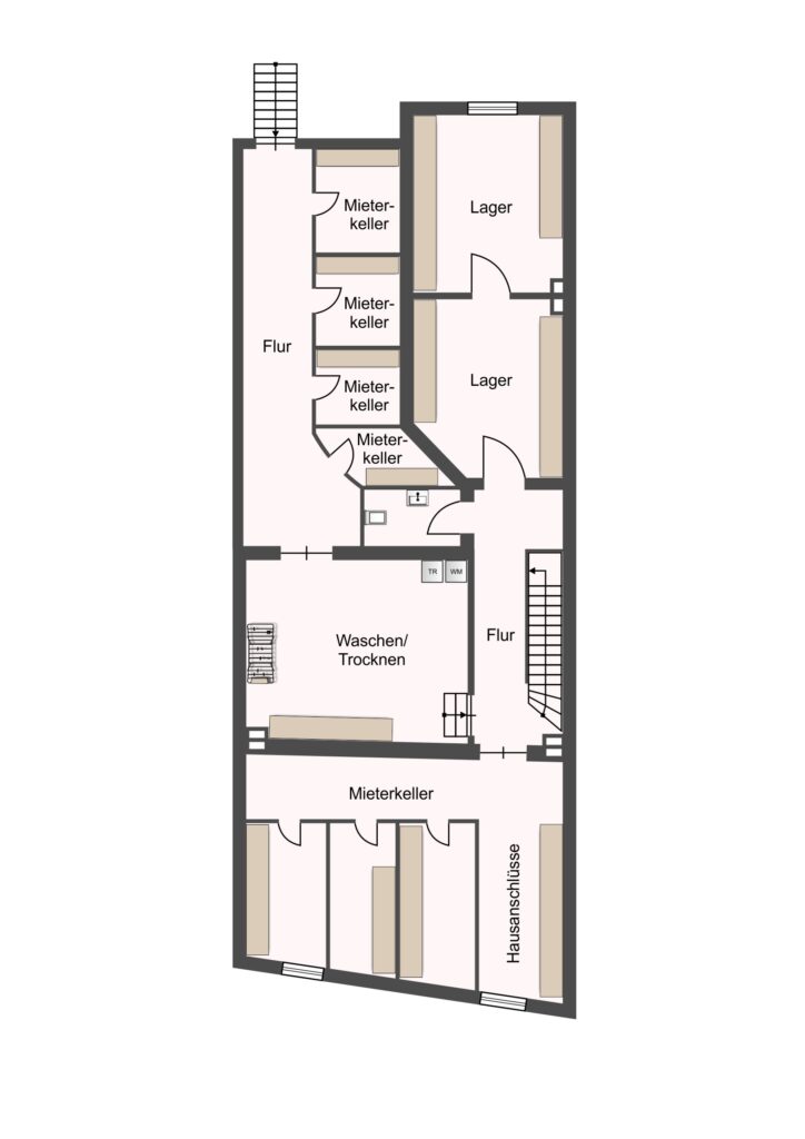
In den darüberliegenden Etagen liegen drei 4-Zimmerwohnungen. Die Wohnungen im ersten und zweiten Obergeschoss verfügen je über einen gartenseitig gelegenen überdachten Balkon und erstrecken sich ebenso über den Anbau. Diese beiden Wohnungen sind je ca. 114 m² groß und an Wohngemeinschaften vermietet. Die Wohnung im dritten Obergeschoss ist rd. 68 m² groß und verfügt über einen straßenseitigen Balkon. Auch diese Einheit ist an eine Wohngemeinschaft vermietet. Auf der selben Etage liegt gartenseitig eine weitere Einheit, die z.Z. nicht vermietet ist. Im Dachgeschoss findet sich ein wohnlich ausgebautes Appartement, welches an eine ruhige Einzelperson vermietet ist. Alle Wohnungen sind mit Dusch oder Wannenbädern ausgestattet. Die Bodenbeläge sind unterschiedlich ausgeführt, es finden sich aufgearbeitete Dielenböden, Laminat-, Vinyl- und Teppichböden, die Sanitärräume sind gefliest. Beheizt werden die Wohnungen und die Ladenlokale über separate Gas-Etagenheizungen, Warmwasser wird über Durchlauferhitzer erzeugt. Im Keller gibt es neben einem Lager für das linke Ladenlokal, die Mieterkeller, die Gemeinschaftswaschküche und den Hausanschlussraum. Eine rückwärtige Außentreppe führt in den Innenhof und in den Garten.
Hier einige Ausstattungsdetails, die wir Ihnen gerne im Rahmen einer Innenbesichtigung erläutern:
– Gas-Etagenheizungen
– isolierverglaste Kunststofffenster
– Holzdielenböden, Laminat-, Vinyl und Teppichböden in den Wohnungen
– Dusch- und Wannenbäder
– Überdachte Balkone im 1. und 2. Obergeschoss
– straßenseitiger Balkon im 3. Obergeschoss
– hohe Decken in den Wohnungen im 1. und 2. Obergeschoss
Flächen:
ca. 360 m² inkl. des wohnlich ausgebauten Dachgeschosses (ca. 32 m²), zzgl.
ca. 52 m² Ladenfläche im Erdgeschoss
Grundstück:
ca. 251 m²
Altlastenauskunft:
Lt. Auskunft der Bundesstadt Bonn vom 27.08.2025 liegen keine Altlasten vor.
Baulastenauskunft und Erschließungsbeiträge:
Entsprechende Auskünfte sind bei der Bundesstadt Bonn erbeten und liegen in Kürze vor.
Energieausweis:
Dieser wird zur Zeit erstellt und liegt zur Besichtigung vor.
Aktueller Nettomietertrag:
rd. 54.144 EUR p.a.
Lage:
Auf der rechten Rheinseite, in direkter Nachbarschaft zur Bonner Innenstadt und mit einem eigenen pulsierenden Zentrum gehört Beuel zu den beliebtesten Wohnlagen im Bonner Stadtgebiet. Urbanes Leben wird hier groß geschrieben. Kurze Wege garantiert das vielfältige Einzelhandels- und Gastronomieangebot im Stadtteil. Das Bonner Zentrum ist mit dem Bus, der Stadtbahn oder per Fahrrad in wenigen Minuten über die Kennedybrücke erreicht. Kindergärten und Schulen liegen in direkter Nähe, zur Naherholung bieten sich die nahe Rheinpromenade oder die Siegmündung an. Die Autobahnzubringer nach Köln und Frankfurt sind nach wenigen Fahrminuten erreicht.
Provision:
Der Käufer zahlt eine Provision in Höhe von 3,57 % des Kaufpreises inkl. der gesetzlichen Mehrwertsteuer, fällig und zahlbar am Tage der notariellen Beurkundung des Kaufvertrages. Wir weisen darauf hin, dass wir mit dem Verkäufer eine Provision in gleicher Höhe vereinbart haben.
Besichtigung:
Für eine Innenbesichtigung setzen Sie sich bitte mit Herrn Roth in Verbindung.
Steckbrief
- Objekt Nr.: 16808
- Objektart: Wohn- und Geschäftshaus
- Lage: Beuel
- Wohnfläche: 360 m²
- Grundstücksfläche: 251 m²
- Vermietbare Fläche: 412 m²
- Wohneinheiten: 5
- Gewerbeeinheiten: 2
- Keller: Ja
- Balkon: ja
- Terrasse: ja
- Baujahr: 1918
- Heizungsart: Etagenheizung
- Immobilie ist verfügbar ab: vermietet
- Befeuerungsart: Gas
- Aktuelle Mieteinnahmen: 54.144 €
- Sonstige Fläche: 52 m²
- Bodenbelag: Fliesen, Teppich, Laminat, Linoleum
- Kaufpreis: 990.000 €
- Courtage (inkl. MwSt.): 3.57 %









