Zu Verkaufen 595.000 € - Terrassenwohnung
GEBÄUDE
Das Grundstück, auf dem das moderne 5-Parteienhaus im Jahre 2000 errichtet wurde, liegt nicht an der Straße. Man erreicht es über eine kleinere Wohnstraße, die an dem Privatgrundstück mit dem Gebäude mündet.
Das 2 1/2-geschossige Gebäude wurde von einem bekannten Bonner Architekten individuell geplant und errichtet. Es beherbergt zwei Maisonette-Wohnungen im Erdgeschoss, die zum Verkauf stehende Wohnung im 1. Obergeschoss und zwei Galeriewohnungen im 2. Obergeschoss.
Im Untergeschoss sind die Abstell- und Technikräume, der Heizungskeller und die Waschküche untergebracht.
Eine der vier Garagen neben dem Gebäude gehört ebenfalls dem Verkäufer. Sie hat ein eigenes Grundbuchblatt und kann hinzuerworben werden. Der Verkäufer würde sie aber auch behalten wollen, falls der Erwerber kein Interesse an ihr hat. Neben den Garagen liegt ein Fahrradraum.
WOHNUNG
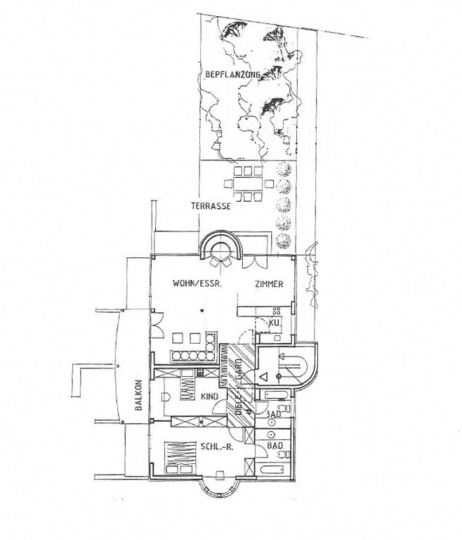
Die traumhafte Wohnung 3 erstreckt sich über das gesamte 1. Obergeschoss. Sie verfügt über eine große Terrasse (5 m x 5,60 m) in Westausrichtung, an die sich die begrünten Dächer der Garagen anschließen. Diese Fläche wurde liebevoll und dennoch pflegeleicht vom Eigentümer angelegt. Vom Wohnbereich erreicht man ebenfalls den Balkon (2 m x 7 m) mit herrlichem Blick ins Grüne und in den Garten der unteren Wohnungen.
AUSSTATTUNG
– die Böden aller Wohnräume sind mit Parkett (Eiche natur) belegt
– Simatic-Einbauküche mit Miele-Markengeräten (Ceranfeld, Mikrowelle, Backofen, Geschirrspüler, Dunstabzugshaube, Kühl-/Gefrierkombination), die Arbeitsflächen sind, wie der Boden, in hellem Granit ausgeführt
– zwei tagesbelichtete Bäder, davon ein Ensuite-Bad mit Doppelwaschbecken, Dusche, WC und Bidet, das zweite Bad ist mit einer Badewanne, einem WC und einem Waschbecken ausgestattet.
Beide Bäder verfügen über weißes Sanitär und weiße Wandfliesen. Böden und Ablagen sind aus dunklem Granit.
– Kamin im Wohnbereich
– Sonnenterrasse
– überdachter Balkon
– elektrisch gesteuerte Markise
– zahlreiche Innenjalousien (z.B. Bad, Küche u. Schlafzimmer)
– Paneelsystem mit Japanpapier im Schlafzimmer, Verdunkelungsgardinen im Wohnzimmer
– Insektenschutz (Fa. Neher) an Balkon- und Terrassentür sowie an den Schlafzimmerfenstern
– zahlreiche Einbauschränke in allen Zimmern und im Flur
– zwei mobile Klimageräte im Wohnzimmer und Schlafzimmer mit maßgefertigten Fensterauslässen (Fa. Lepper)
– Sichtschutz auf der Terrasse (Maßanfertigung von Mitsching) und großen Pflanzenkübeln mit Eiben und Buxus
– zur Wohnung gehört ein großer Kellerabstellraum
– Fußbodenheizung in allen Räumen und Vieles mehr, das wir Ihnen gerne bei der Besichtigung zeigen
WOHNFLÄCHE
ca. 123 m² incl. eines Anteils von je ca. 7 m² an der Terrassen- und der Balkonfläche
HAUSGELD
598,28 EUR monatlich (incl. Heiz- und Nebenkosten, Verwaltung, Instandhaltung, etc.)
ENERGIEVERBRAUCHSAUSWEIS
Effizienzklasse C, 96 kWh (m²a), gültig bis 11.2028, gaszentral
KAUFPREISE
595.000 EUR für die Wohnung + 20.000 EURfür die Garage
615.000 EUR Gesamtpreis
PROVISION
Der Käufer zahlt eine Provision i. H. v. 3,57 % des Kaufpreises inkl. der gesetzlichen Mehrwertsteuer, fällig und zahlbar am Tage der notariellen Beurkundung des Kaufvertrages. Wir weisen darauf hin, dass wir mit dem Verkäufer ebenfalls eine Provision in der gleichen Höhe vereinbart haben.
BESICHTIGUNG
Zwecks Innenbesichtigung der Wohnung setzen Sie sich bitte mit Christine Roth unter 0228/316051 in Verbindung.
LAGE
Dottendorf ist ein historisch gewachsener Bonner Stadtteil, am Fuße des Venusberghangs gelegen. Er ist gut an das öffentliche Verkehrsnetz angebunden. Das Haus liegt in einer ruhigen Sackgasse ca. fünf Gehminuten vom Quirinusplatz entfernt, von wo man bequem mit der S-Bahn (61 und 62) oder den Buslinien 612 und 614 in die Bonner und Bad Godesberger Innenstadt oder sogar über das Beueler Zentrum bis nach Oberkassel gelangt.
Die Autobahnanschlüsse (A 562, A59 und A 565) sind nur wenige Kilometer entfernt.
Herrliche Wanderwege rund um den Venusberg, aber auch in der Rheinaue laden zu ausgiebigen Spaziergängen ein.
Steckbrief
- Objekt Nr.: 17288
- Objektart: Terrassenwohnung
- Lage: Dottendorf
- Wohnfläche: 123 m²
- Nutzfläche: 12 m²
- Stock/Geschoss: 1
- Zimmer gesamt: 3
- Schlafzimmer: 2
- Badezimmer: 2
- Keller: Ja
- Balkon: ja
- Terrasse: ja
- Einbauküche: ja
- Baujahr: 2000
- Heizungsart: Fußbodenheizung
- Anzahl Garagenplätze: 1
- Garage: ja
- Immobilie ist verfügbar ab: nach Vereinbarung
- Befeuerungsart: Gas
- Stellplatzkaufpreis (Garage): 20.000 €
- Art der Ausstattung: luxuriös
- Bodenbelag: Parkett
- Stellplatzart: Garage
- Kaufpreis: 595.000 €
- Courtage (inkl. MwSt.): 3.57 %
- Hausgeld: 495 €




























