Zu Verkaufen 1.190.000 € - Doppelhaushälfte
GRUNDSTÜCK
ca. 513 m² – ebenes Gelände, gärtnerisch angelegter Vorgarten, seitliche gepflasterte Zuwegung zur Eingangstür und betonierte Zugang zum Garten mit Rasen, Büschen und einem prachtvollen Kirschbaum. An der rückseitigen Grenze steht ein massiv errichtetes Nebengebäude (keine Wohnnutzung – Lager und Abstellflächen).
GEBÄUDE
Gemäß dem Text der Denkmalschutzbehörde (A711) stammt das fünfachsige Gebäude mit Neurenaissance-Putzfassade als Teil eines geschlossenen, überwiegend dreigeschossigen Straßenzuges aus dem 19. Jahrhundert. Im Ursprung wurden die linken drei Achsen 1888 als zweigeschossiges mit Satteldach errichtet.
Bereits 1890 wurde die nach rechts folgende Erweiterung des Gebäudes um zwei Achsen auf insgesamt fünf Achsen beantragt. 1925 folgte ein weiterer Umbau – zu Bürozwecken, wobei das Dach vorne angehoben wurde und das Gebäude straßenseits sein heutiges dreigeschossiges Erscheinungsbild erhielt. Dabei werden entsprechend auch geringfügige Grundrissänderungen vorgenommen. 1936 erfolgte dann der Anbau eines Balkons auf der Rückseite, später der Einbau eines Bades im Erdgeschoss sowie von Flurabschlüssen im Erd- und Obergeschoss zur Abtrennung einzelner Wohnungen.
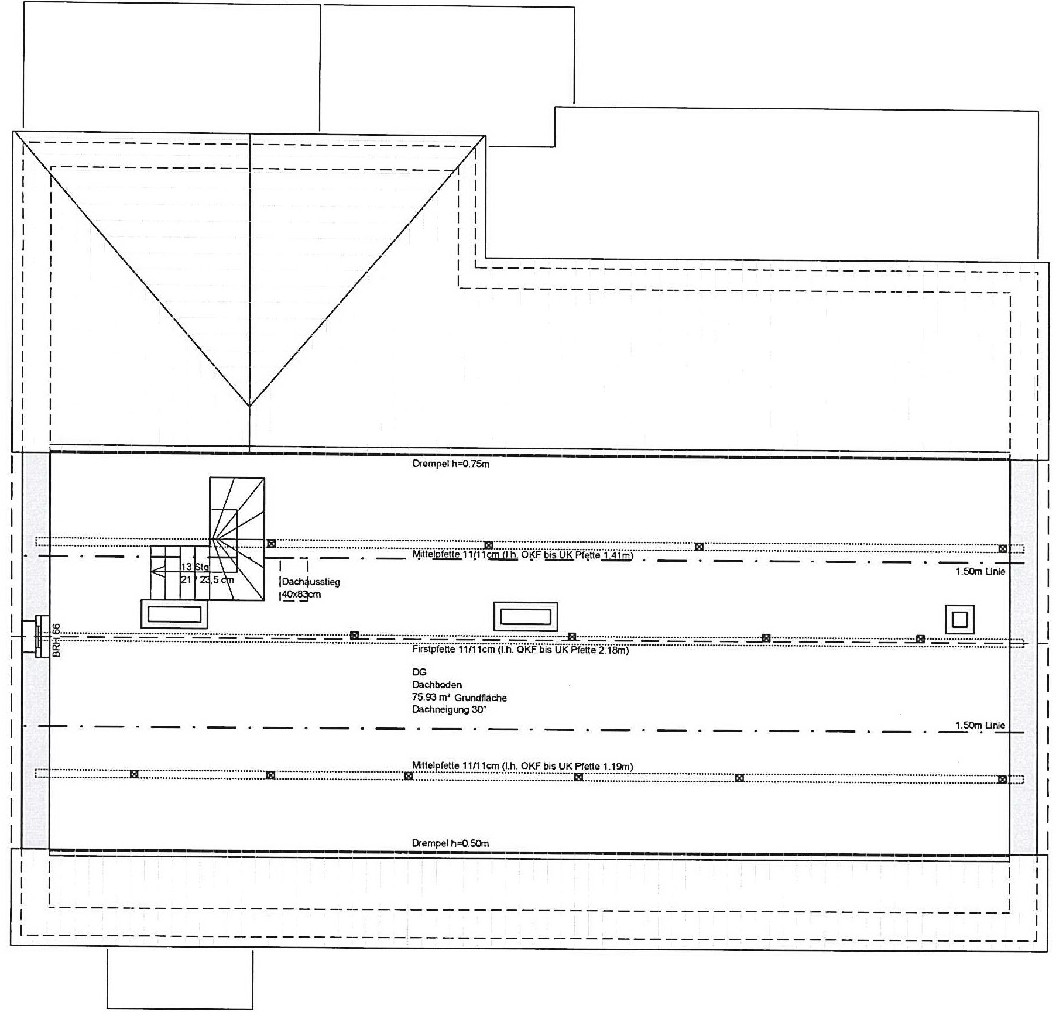
Diese Aufteilung hat bis heute Bestand, sodass nunmehr drei Etagenwohnungen zur Verfügung stehen. Über der Wohnung im 2. Obergeschoss gibt es einen Speicherbereich mit eigenem Treppenzugang.
Im Laufe der Jahrzehnte erfolgten zahlreiche Modernisierungen, umfängliche Erneuerungen ca. 2008, wobei auch die Dachdeckung erneuert wurde. Alle ursprünglichen Fenster wurden mit Isolierverglasung ertüchtigt, einige Fenster wurden später komplett erneuert.
Die gründerzeitlichen Merkmale im Inneren des Gebäudes (hohe Decken, Kassettentüren) sind erhalten, leider ist kein Deckenstuck mehr vorhanden. Die Böden der Erdgeschosswohnung ist mit Stäbchenparkett belegt, die Wohnung im 2. Obergeschoss hat aufgearbeitete Fichtendielen, im 1. Obergeschoss wurde Teppichboden verlegt (wir gehen davon aus, dass darunter noch historischer Dielenboden zu finden ist).
Die Bäder im Erd- u. 1. Geschoss wurden augenscheinlich in den 80er/90er Jahren erneuert. Das Duschbad der Wohnung im 2. OG wurde ca. 2015 modernisiert.
Der darüberliegende Speicher mit eigenem Treppenzugang könnte – nach bauamtlich genehmigter Nutzung – ggf. zu Wohnfläche ausgebaut werden.
Die Beheizung erfolgt über Gasetagenheizungen, im Erdgeschoss ist diese aus den 90er Jahren, in den Obergeschossen vermutlich 2008. Da das Gebäude unter Denkmalschutz steht, ist kein Energieausweis erforderlich.
WOHNLICHE FLÄCHE
ca. 378 m² (zzgl. ev. genehmigungsfähigem Speicherausbau)
AUFTEILUNG
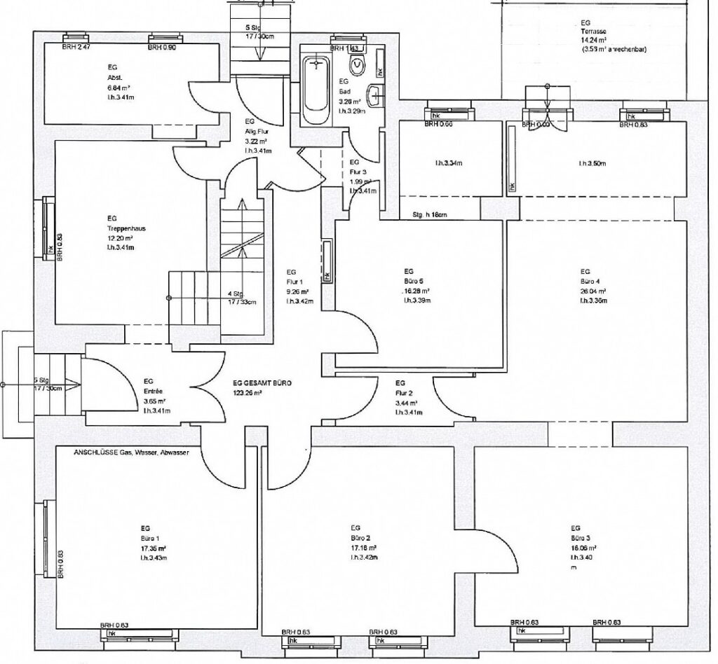
EG (ca. 125 m²): 4 Zimmer, Küche, Diele, Bad, Terrasse und Zugang zum Garten
1.OG (ca. 135 m²): 5 Zimmer, Küche, Diele, Bad, Wintergarten
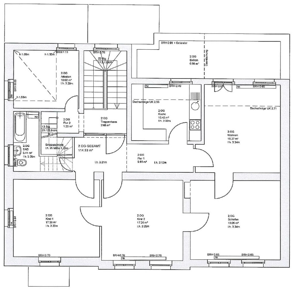
2.OG (ca. 118 m²): 4 Zimmer, Küche, Diele, Bad, Balkon + 1 separates Arbeitszimmer (von Treppenhaus begehbar)
MIETERTRAG
EG : 1.350,00 EUR + Heiz-/Nebenkosten
1.OG: 1.180,47 EUR + Heiz-/Nebenkosten
2.OG: 1.200,00 EUR + Heiz-/Nebenkosten
Gesamt: 3.730,47 EUR p.M. / 44.765,64 EUR p.a.
Eventuelle Steigerungsmöglichkeiten: Die Mieten pro m² der Wohnungen in den Obergeschossen liegen unterhalb des Mietspiegels der Stadt Bonn (1.OG: EUR 8,74 pro m² statt möglicher EUR 10,14 pro m² / 2.OG: EUR 10,17 pro m² statt möglicher EUR 11,88 pro m²). Es gäbe daher u.U. die Möglichkeit von Mieterhöhungen.
KAUFPREIS
1.190.000 EUR
PROVISION
Der Käufer zahlt eine Provision in Höhe von 3,57 % des Kaufpreises inkl. der gesetzlichen Mehrwertsteuer, verdient, fällig und zahlbar am Tage der notariellen Beurkundung des Kaufvertrages.
LAGE
Das Bad Godesberger Villenviertel, z.Z. der Bonner Republik das bevorzugte Quartier von Diplomaten aus aller Welt, gehört zu den begehrtesten Wohnlagen der Stadt. Hier finden Sie eine hervorragende Infrastruktur vor, so sind alle Schulformen und diverse Kitas in direkter Nähe erreichbar, aber auch Einzelhandel, Gastronomie und die kurzen Wege in die Innenstadt von Bad Godesberg, machen den Ortsteil attraktiv. Die Bonner City erreicht man mit der Stadtbahn oder der DB in 20 Minuten. Zahlreiche kleine Parks und die Nähe zum Rhein bieten einen hohen Erholungs- und Freizeitwert. Die Microlage ist geprägt durch die Bebauung mit Gebäuden aus der Gründerzeit.
Steckbrief
- Objekt Nr.: 17422
- Objektart: Doppelhaushälfte
- Lage: Plittersdorf
- Wohnfläche: 378 m²
- Nutzfläche: 200 m²
- Grundstücksfläche: 513 m²
- Zimmer gesamt: 13
- Badezimmer: 3
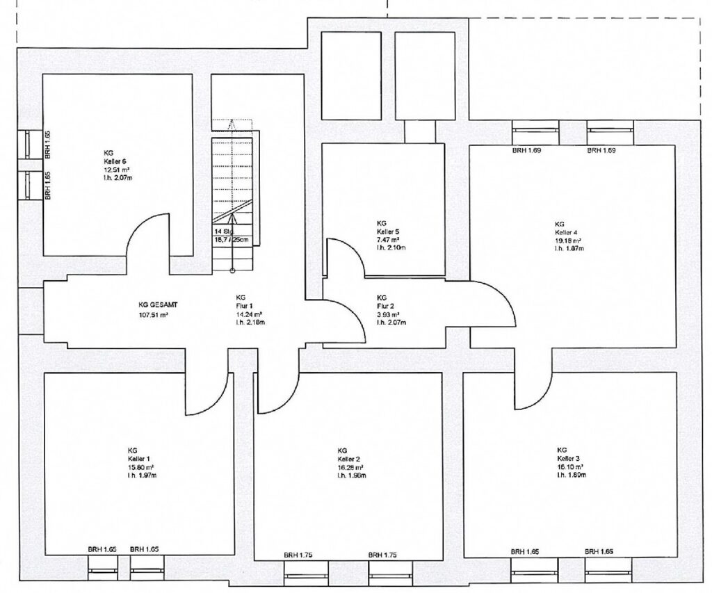
- Keller: Ja
- Balkon: ja
- Terrasse: ja
- Baujahr: 1888
- Denkmalschutzobjekt: ja
- Anzahl Außenstellplätze: 1
- Immobilie ist verfügbar ab: komplett vermietet
- Befeuerungsart: Gas
- Aktuelle Mieteinnahmen: 44.766 €
- Art der Ausstattung: Standard
- Stellplatzart: Freiplatz
- Letzte Modernisierung: 2010
- Kaufpreis: 1.190.000 €
- Courtage (inkl. MwSt.): 3.57 %































