Zu Vermieten 1.850 € - Einfamilienhaus
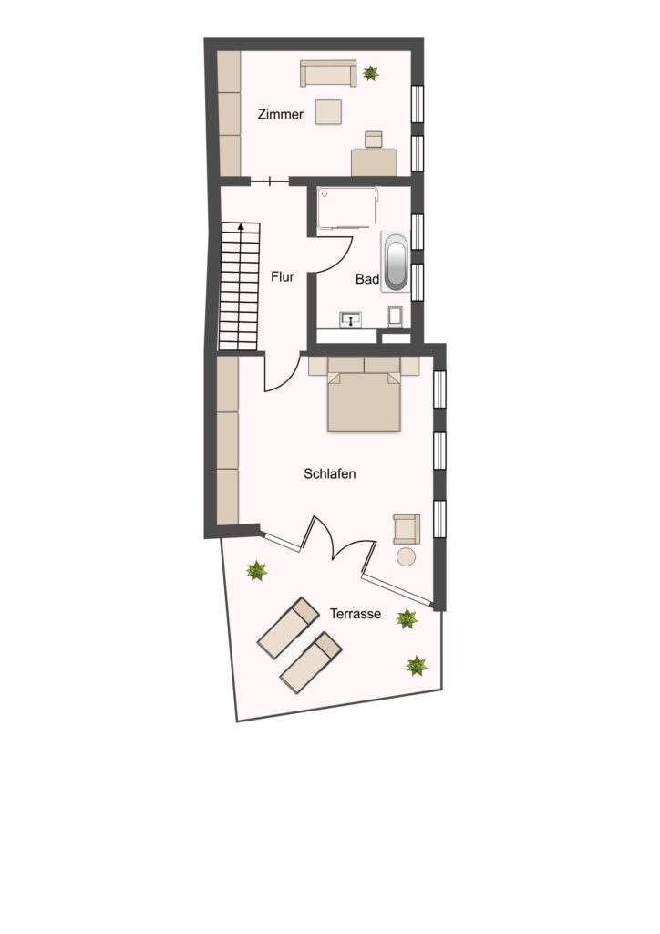
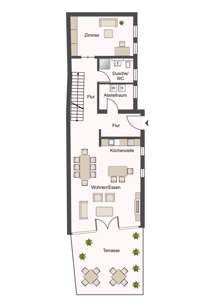
Das 2009 erbaute und 2015 topausgestatte Reihenhaus besticht durch seine außergewöhnliche Architektur. Man betritt das Haus über die Diele, rechterhand liegt ein Gästezimmer, ein modernes Duschbad und ein Hauswirtschaftsraum. Die voll ausgestattete Einbauküche ist offen gestaltet, der davor gelegene großzügige Wohn/Essbereich führt auf eine Terrasse und den lauschigen Garten. Über eine edle Holztreppe wird das Obergeschoss erschlossen. Hier sind ein ein großes Hauptschlafzimmer mit Zugang auf die zweite Terrasse, ein Wannenbad und ein Arbeitszimmer. Alle Wohnräume sind mit Eichendielen belegt, die Bäder sind gefliest.
Das Haus liegt in zentraler Lage von Bonn-Poppelsdorf, die Anbindung an den ÖPNV (Buslinien 601,602, 603 und 631) und an das Autobahnnetz von Bonn sind als hervorragend zu bezeichnen. Alle Geschäfte zur Deckung des täglichen Bedarfs befinden sich im Poppelsdorfer Zentrum und sind zu Fuß in zwei Minuteb erreichbar.
Hier einige Ausstattungsdetails:
– isolierverglaste Fenster mit elektrische gesteuerten Rollläden
– modernes Duschbad mit Fenster
– modernes Wannenbad mit Fenster
– Einbauküche
– diverse Einbauschränke mit viel Stauraum
– Eichendielen
– Hauswirtschaftsraum
– Gaszentralheizung (Brennwerttechnik)
– 2 Terrassen
– zwei PKW-Stellplätze dem Grundstück
Steckbrief
- Objekt Nr.: 16274
- Objektart: Einfamilienhaus
- Lage: Poppelsdorf
- Wohnfläche: 153 m²
- Grundstücksfläche: 270 m²
- Wohneinheiten: 1
- Zimmer gesamt: 4
- Terrasse: ja
- Einbauküche: ja
- Baujahr: 2009
- Anzahl Außenstellplätze: 2
- Immobilie ist verfügbar ab: sofort
- Befeuerungsart: Gas
- Art der Ausstattung: gehoben
- Bodenbelag: Parkett
- Stellplatzart: Freiplatz
- Miete zuzügl. Nebenkosten: 1.850 €
- Heizkosten enthalten: ja
- Betriebs-/Nebenkosten: 240 €
- Kaution: 5.400 €



















